发布时间:2019-08-31

美源·美源,位于重庆总部城区域,汇聚各行业龙头企业及核心商务资源,是重庆区块链产业创新基地,获评渝中区甲级商务楼宇、五星级商务楼宇。
重庆区块链产业基地
市区块链产业创新基地,2017年落户美源·美源,综合竞争力进入全国“第一梯队”,地处重庆总部城区域,中大型企业200余家,大数据智能化相关企业3000余家,多产业联动的核心经济圈,以圈层广度,迎未来高度。
高品质办公空间
9米挑高入户,500㎡全石材精装大堂,双层中空LOW-E玻璃,7部三菱Maxiez高速电梯,4层超宽阔车库,精装宽敞公共区域。
甲级物业服务
因高品质物业服务获评渝中区“甲级商务楼宇”“五星级商务楼宇”,365日高效安防,24小时物管保障,“客户至上,精益求精”是我们的服务使命。
三桥四线立体交通网
嘉华大桥、石门大桥、红岩村大桥纵贯南北,1、2、5、9四条轻轨穿越东西,与多条公交形成立体交通网,联通两江四岸,互联主城九区。
超100万方商业配套
紧邻协信星光天地,近享大坪商圈配套,集购物、娱乐、办公、商务为一体,汇聚重庆核心商业能量。
名企云集,跨界聚变
重庆浪潮云链信息技术有限公司,中国交通建设股份有限公司项目部,中国中铁股份有限公司,重庆轨道交通27号线工程联合体总承包部,重庆光大百龄帮康养产业集团有限公司,重庆仁孚汽车销售服务有限公司......
【美源·美源房源基本信息】
类型:纯商务写字楼
装修:精装修
注册:可注册
楼盘地址:渝中·经纬大道789号
招商热线:023-61893655 15823500636
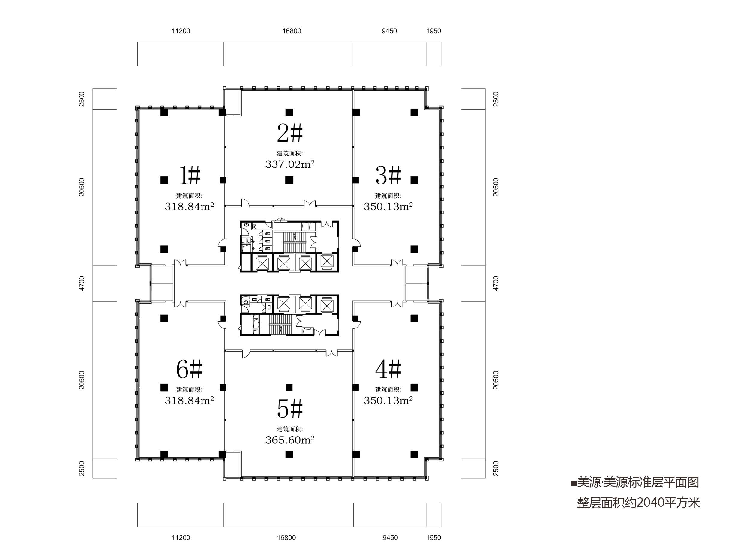
【美源·美源户型图】
